
Casa
Raíz
Pachuca, Hgo.

Besana Studio
Arquitecto
"Casa Raíz" se concibe como un santuario de serenidad y conexión con la naturaleza, donde la arquitectura se fusiona armoniosamente con el entorno.
Ubicada en un exuberante paisaje, esta residencia se erige como un testimonio de diseño consciente, priorizando la integración de materiales naturales y la creación de remates visuales que celebran la belleza del mundo exterior.
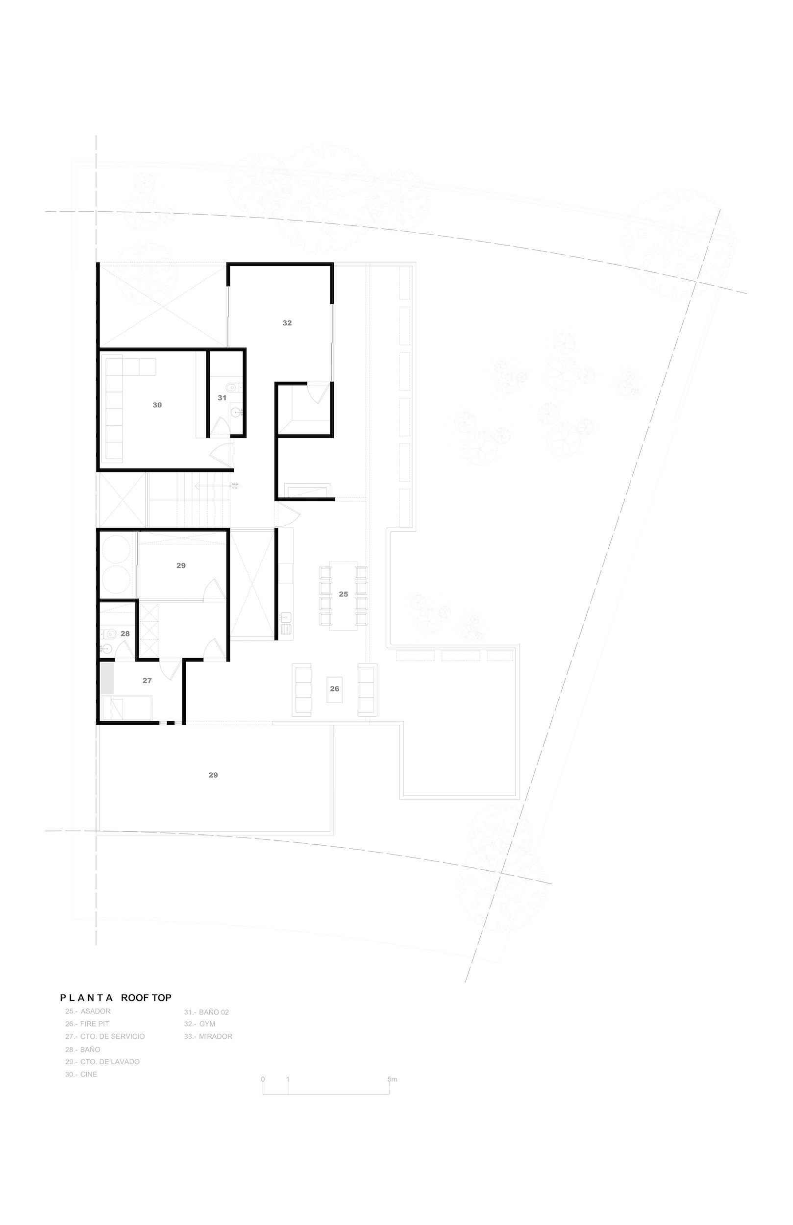
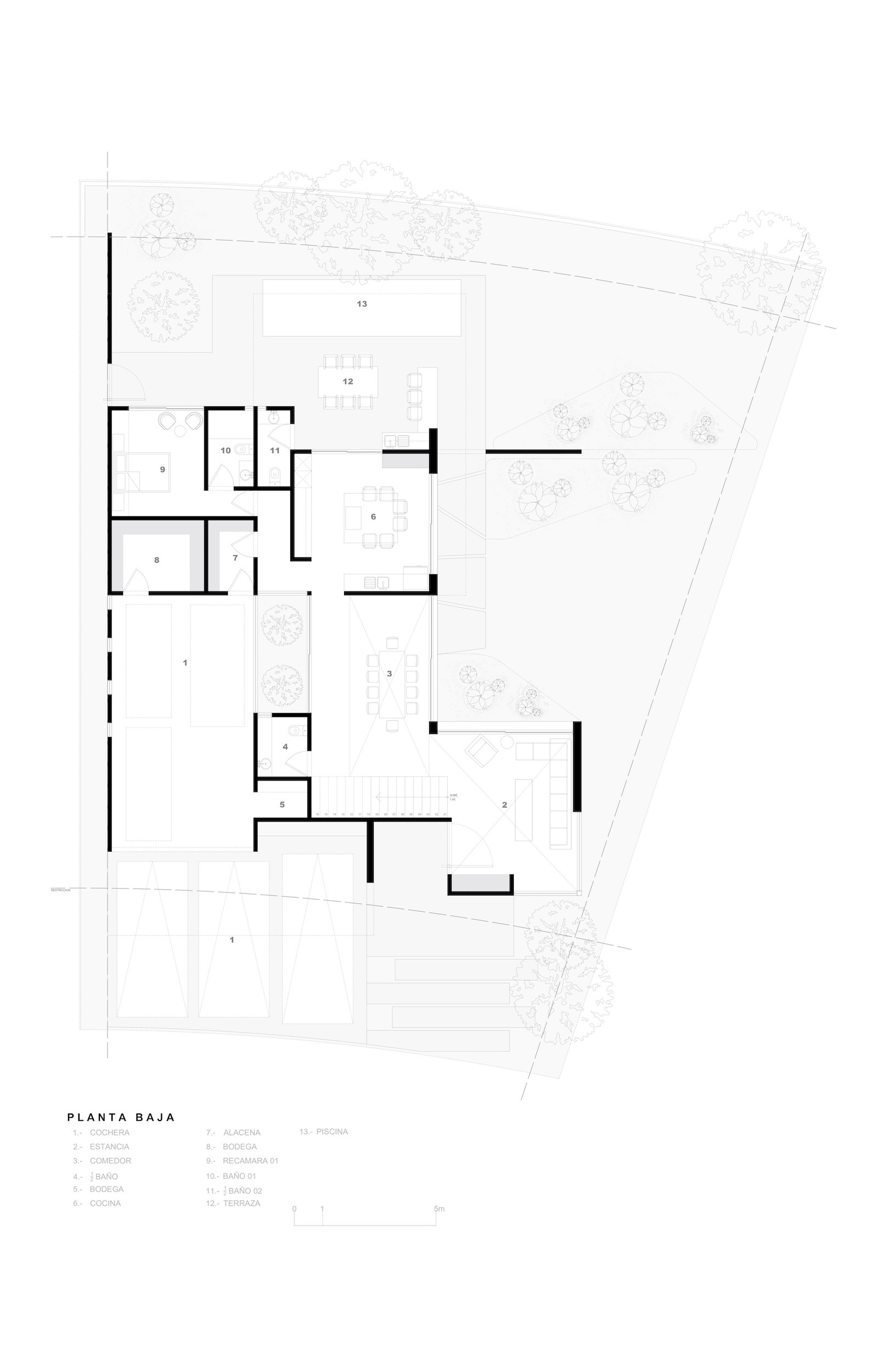
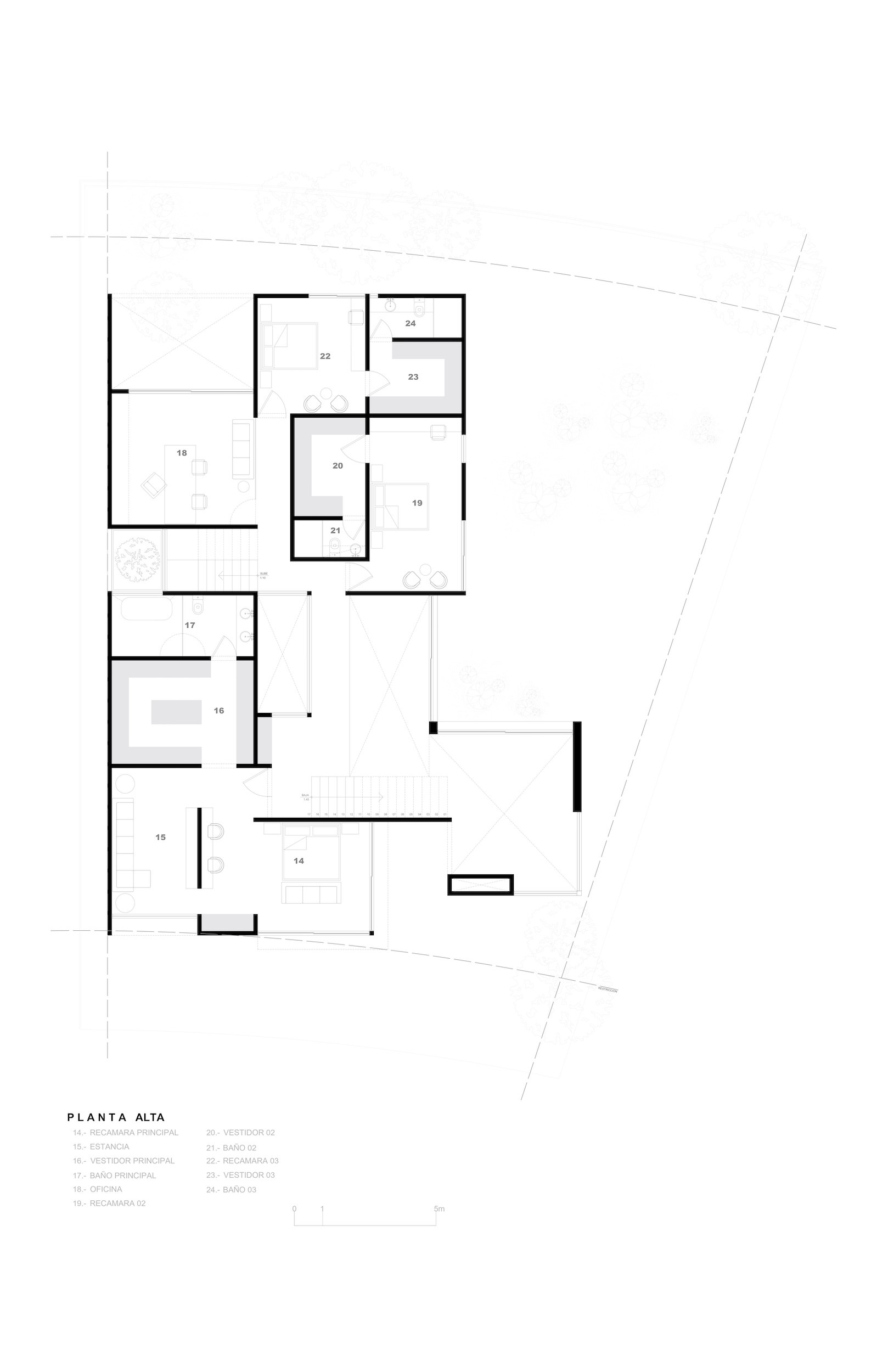
Galería de Proyecto
El nombre "Casa Raíz" encapsula la filosofía del proyecto: la búsqueda de una arquitectura que se siente intrínsecamente ligada a la tierra, creciendo y desarrollándose a partir de ella.
El diseño se caracteriza por su geometría limpia y contemporánea, que contrasta y a la vez complementa la organicidad del paisaje.
Se emplean volúmenes que se abren estratégicamente hacia el exterior, difuminando los límites entre lo construido y lo natural. El concepto central es crear un ambiente de calma y contemplación, utilizando la luz natural y las vistas como elementos de diseño primordiales.

Besana Studio
Arquitecto
Nuestros proyectos
La voz de quienes ya habitan Besana

Casa
INN
En última instancia, esta residencia es un testimonio de cómo la arquitectura puede elevar la experiencia cotidiana. El equilibrio entre la robustez de sus volúmenes y la ligereza de su jardín interior refleja una madurez creativa donde cada detalle tiene un propósito.

Casa
Malva
Casa Malva es una propuesta residencial que combina audacia formal con sofisticación material.

Casa
Alvento
Casa Alvento se erige como una residencia que redefine el concepto de vivienda compacta, logrando un equilibrio entre la pureza formal del minimalismo y una calidez envolvente.

Casa
Beta
El diseño interior se basa en el concepto de planta abierta (open concept) en el nivel inferior, esencial para la percepción de un espacio más grande y fluido.

Casa
Zibatá
Casa Zibatá se consolida como una residencia de alto diseño que cumple con los estándares de la arquitectura contemporánea de Querétaro.

Casa
Raíz
"Casa Raíz" se concibe como un santuario de serenidad y conexión con la naturaleza, donde la arquitectura se fusiona armoniosamente con el entorno.

Casa
Mazuga
Casa Mazuga se desplanta con volumetrías solidas y pesadas, que se conjugan con el sitio, muestra carácter y firmeza en su lenguaje arquitectónico.




















