
Casa
Mazuga
Pachuca, Hgo.
2024

Francisco Javier Ríos Rodríguez
Arquitecto
El proyecto arquitectónico de Casa Mazuga, se desarrolla sobre un terreno de geometría irregular, tomando como eje rector uno de sus laterales, en torno al cual se estructura la propuesta funcional y formal del conjunto
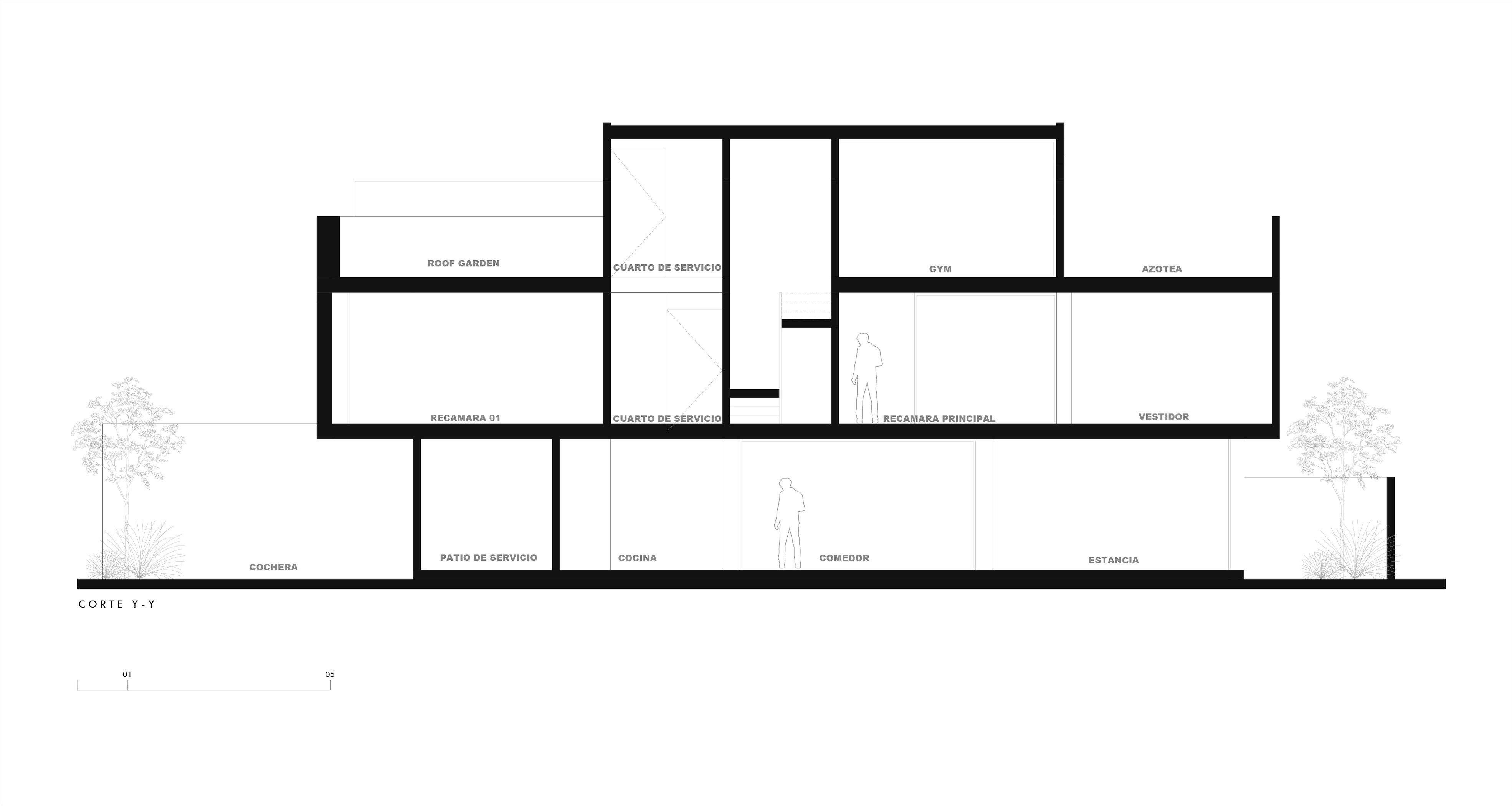
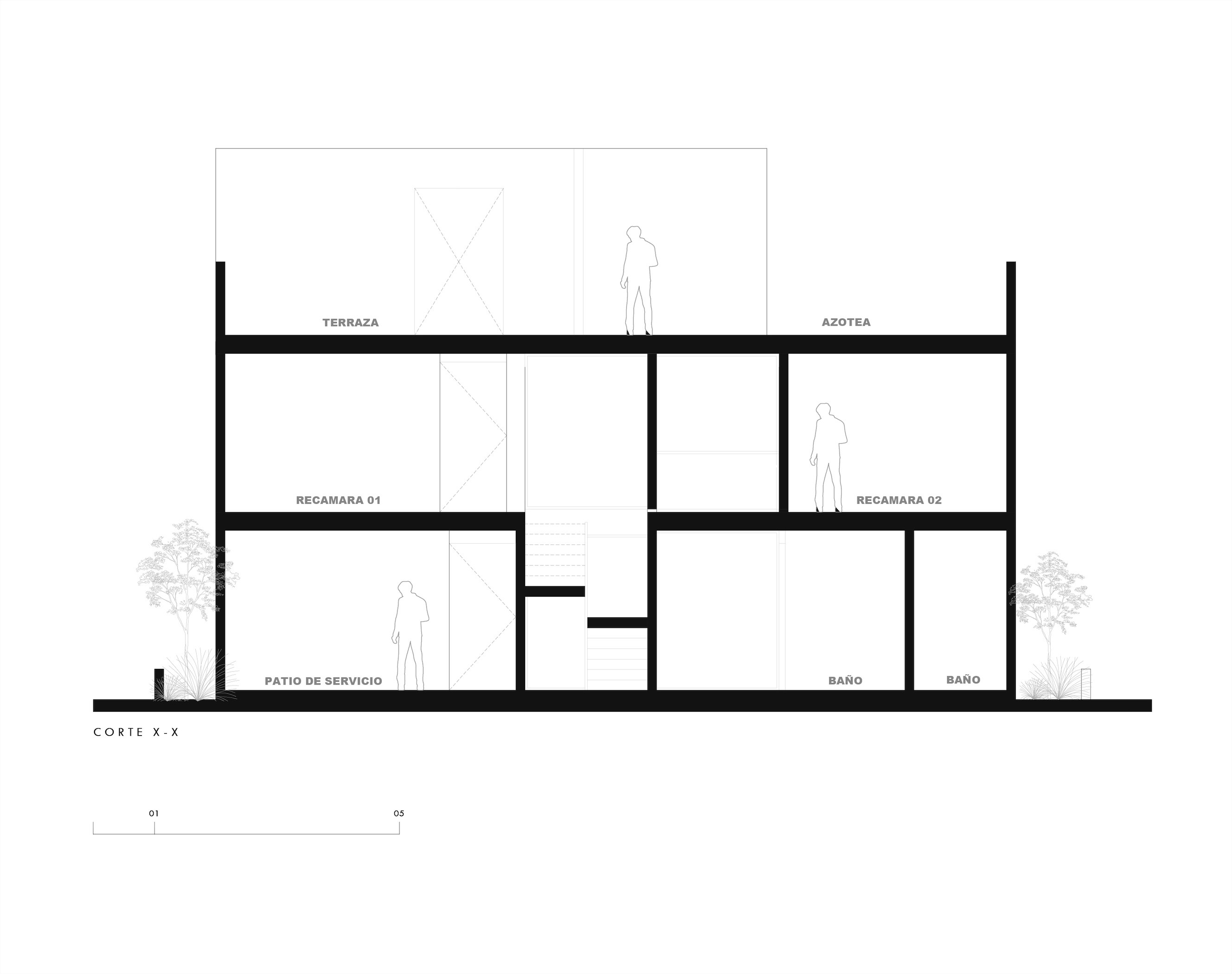
Esta decisión proyectual permitió maximizar la iluminación y ventilación natural a lo largo de todo el desarrollo, favoreciendo condiciones ambientales óptimas en cada uno de los espacios habitables. La distribución espacial se concibió estratégicamente para permitir la creación de un amplio jardín interior, concebido no solo como un espacio de esparcimiento y contacto con la naturaleza, sino también como un recurso visual que se integra plenamente con los ambientes interiores.
Esta conexión visual y espacial entre el interior y el exterior aporta una sensación de amplitud y continuidad en sus dos niveles, además de enriquecer la experiencia sensorial en el recorrido cotidiano dentro de la vivienda.
Galería de Proyecto
El lenguaje arquitectónico de la casa se manifiesta a través de una composición basada en líneas regulares y limpias, una paleta de colores neutros en los muros, y la utilización de materiales cálidos y nobles como la madera de encino americano.
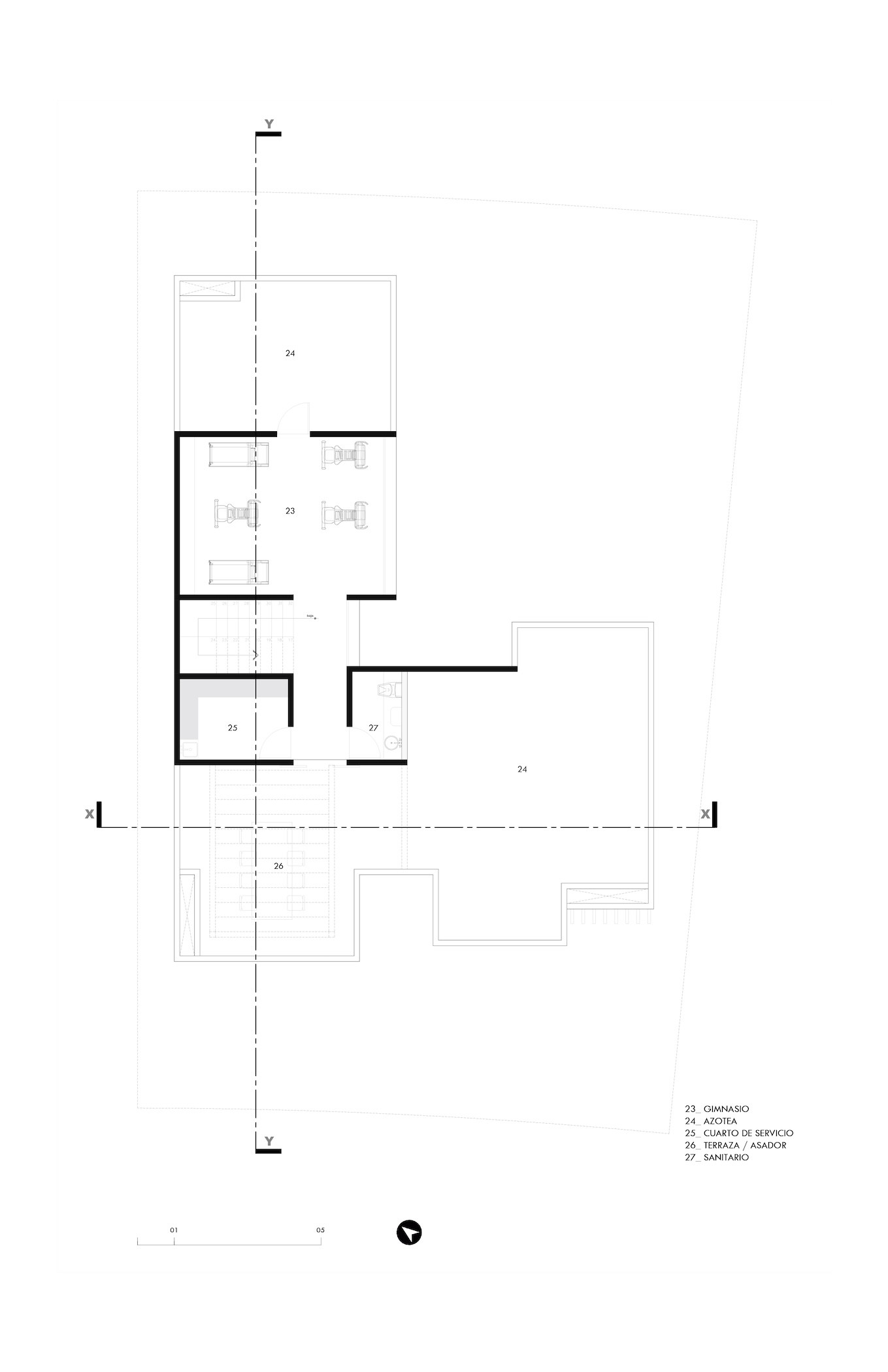
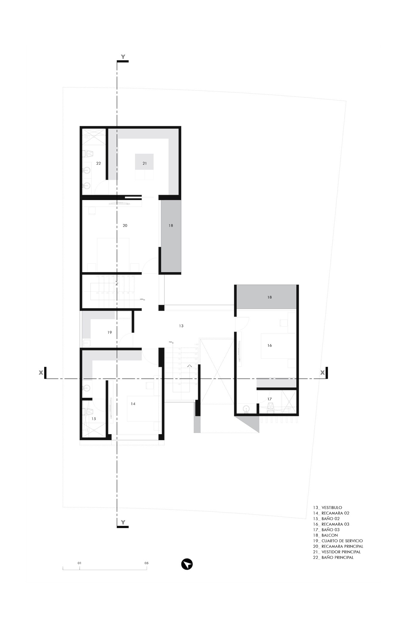
La Planta alta mantiene privacidad, albergando el área mas intima de la residencia pero sin perder esa generosidad de las vistas verdes que penetral por grandes ventanales que nos permiten tener una continuidad visual, de esta forma la luz natural y el impacto de la vegetación entra firmemente y sin barreras.
El lenguaje arquitectónico de la casa se manifiesta a través de una composición basada en líneas regulares y limpias, una paleta de colores neutros en los muros, y la utilización de materiales cálidos y nobles como la madera de encino americano. Este elemento aporta textura y calidez a los espacios, generando ambientes acogedores. Los muros repellados con acabados finos se combinan con elementos estructurales expuestos, como columnas y trabes de acero, que aportan una estética honesta y contemporánea. Esta conjugación de materiales y formas responde a una visión clara de arquitectura moderna, sobria y funcional, donde cada elemento tiene un propósito tanto estético como estructural.
Casa Mazuga se desplanta con volumetrías solidas y pesadas, que se conjugan con el sitio, muestra carácter y firmeza en su lenguaje arquitectónico.

Francisco Javier Ríos Rodríguez
Arquitecto
Nuestros proyectos
La voz de quienes ya habitan Besana

Casa
INN
En última instancia, esta residencia es un testimonio de cómo la arquitectura puede elevar la experiencia cotidiana. El equilibrio entre la robustez de sus volúmenes y la ligereza de su jardín interior refleja una madurez creativa donde cada detalle tiene un propósito.

Casa
Malva
Casa Malva es una propuesta residencial que combina audacia formal con sofisticación material.

Casa
Alvento
Casa Alvento se erige como una residencia que redefine el concepto de vivienda compacta, logrando un equilibrio entre la pureza formal del minimalismo y una calidez envolvente.

Casa
Beta
El diseño interior se basa en el concepto de planta abierta (open concept) en el nivel inferior, esencial para la percepción de un espacio más grande y fluido.

Casa
Zibatá
Casa Zibatá se consolida como una residencia de alto diseño que cumple con los estándares de la arquitectura contemporánea de Querétaro.

Casa
Raíz
"Casa Raíz" se concibe como un santuario de serenidad y conexión con la naturaleza, donde la arquitectura se fusiona armoniosamente con el entorno.

Casa
Mazuga
Casa Mazuga se desplanta con volumetrías solidas y pesadas, que se conjugan con el sitio, muestra carácter y firmeza en su lenguaje arquitectónico.





























