
Casa
Nirvana
Pachuca, Hgo.
2025

Besana Studio
Arquitecto
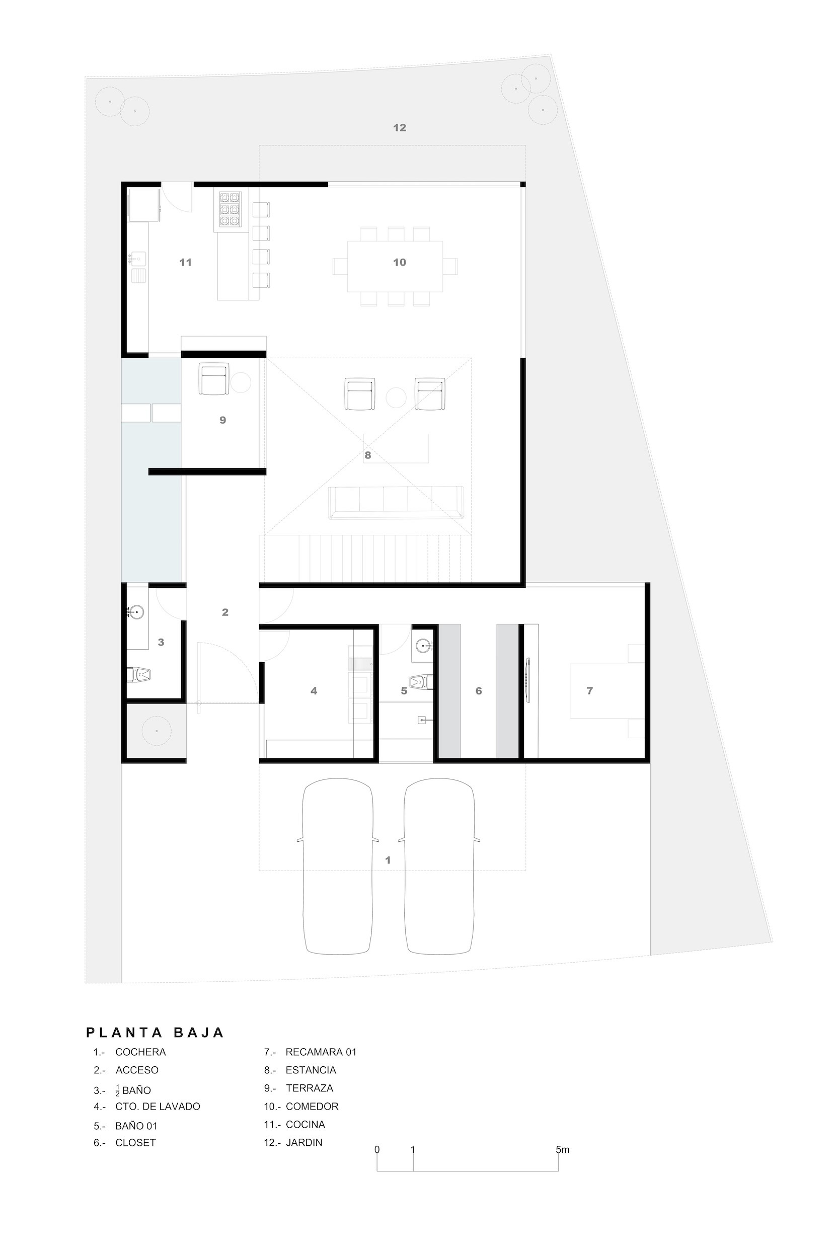
Casa Nirvana es un ejercicio arquitectónico que busca la serenidad a través de la simplicidad.
El proyecto se define bajo un riguroso estilo Moderno y Minimalista, donde la función dicta la forma y la ausencia de ornamentación innecesaria, permite que los materiales, la luz y el espacio sean los verdaderos protagonistas.
Galería de Proyecto
El concepto central es crear un "santuario" doméstico, un espacio que promueva la calma y el bienestar, logrando un equilibrio perfecto entre la sofisticación contemporánea y la calidez humana.
La fachada se resuelve mediante la superposición y articulación de volúmenes cúbicos puros, principalmente en color blanco inmaculado, que flotan y se entrelazan. Los interiores de Casa Nirvana son un manifiesto de diseño minimalista, caracterizado por la fluidez espacial y una atención obsesiva al detalle.
Casa Nirvana es un ejemplo paradigmático de arquitectura de lujo minimalista. El diseño logra su objetivo de ser un espacio sereno y sofisticado mediante el uso estratégico de una paleta de colores neutrales, la honestidad del material (madera y piedra) y la máxima apertura hacia la luz y el exterior. El resultado es una residencia que es a la vez moderna, elegante y profundamente habitable.

Besana Studio
Arquitecto
Nuestros proyectos
La voz de quienes ya habitan Besana

Casa
INN
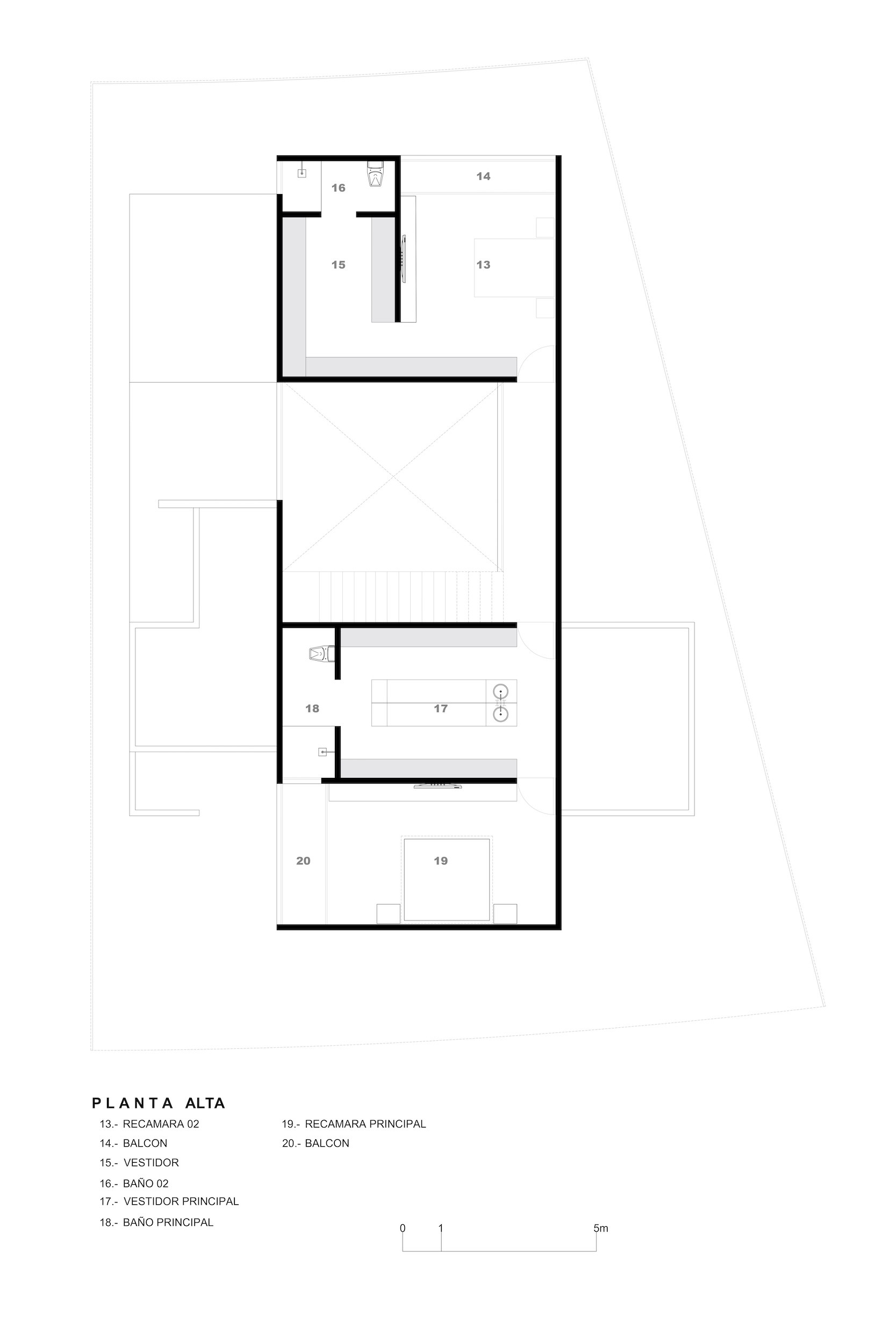
En última instancia, esta residencia es un testimonio de cómo la arquitectura puede elevar la experiencia cotidiana. El equilibrio entre la robustez de sus volúmenes y la ligereza de su jardín interior refleja una madurez creativa donde cada detalle tiene un propósito.

Casa
Malva
Casa Malva es una propuesta residencial que combina audacia formal con sofisticación material.

Casa
Alvento
Casa Alvento se erige como una residencia que redefine el concepto de vivienda compacta, logrando un equilibrio entre la pureza formal del minimalismo y una calidez envolvente.

Casa
Beta
El diseño interior se basa en el concepto de planta abierta (open concept) en el nivel inferior, esencial para la percepción de un espacio más grande y fluido.

Casa
Zibatá
Casa Zibatá se consolida como una residencia de alto diseño que cumple con los estándares de la arquitectura contemporánea de Querétaro.

Casa
Raíz
"Casa Raíz" se concibe como un santuario de serenidad y conexión con la naturaleza, donde la arquitectura se fusiona armoniosamente con el entorno.

Casa
Mazuga
Casa Mazuga se desplanta con volumetrías solidas y pesadas, que se conjugan con el sitio, muestra carácter y firmeza en su lenguaje arquitectónico.























