
Casa
INN
Pachuca, Hidalgo
2025-2026

Besana Studio
Arquitecto
La Armonía del Vacío: Un Diálogo Entre Materia y Luz en Pachuca
En el dinámico paisaje urbano de la ciudad de Pachuca, Besana Studio, bajo la dirección visionaria del Arquitecto Francisco Javier Ríos Rodríguez, ha erigido una obra que desafía la convencionalidad residencial para transformarse en un manifiesto de la arquitectura contemporánea. Esta vivienda no es simplemente una construcción; es una masterpiece de volúmenes sólidos y texturas atemporales que redefine el concepto de habitar.
Galería de Proyecto
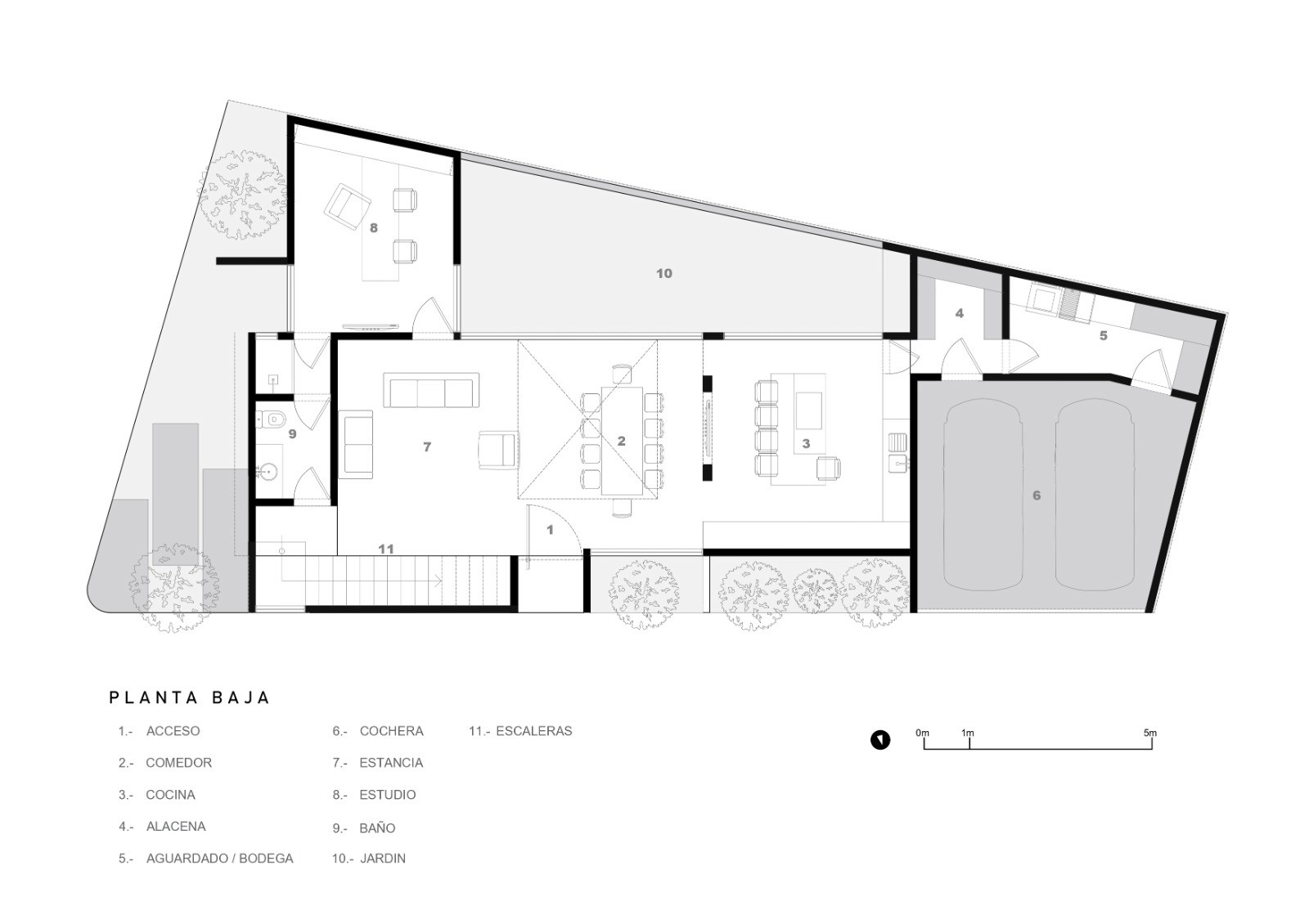
El Corazón Verde: Un Oasis Interior
La premisa de diseño se articula en torno a un eje fundamental: la naturaleza como elemento arquitectónico. El jardín interior no actúa solo como un pulmón visual, sino como el núcleo gravitacional que organiza la planta baja. Este espacio abierto conecta con fluidez los entornos sociales —sala, cocina y comedor—, eliminando las fronteras rígidas entre el "dentro" y el "fuera".
Fiel al sello de Besana Studio la residencia destaca por su volumetría honesta. Los sólidos se presentan con una fuerza tectónica que dialoga con el clima y la luz particular de Pachuca. No hay ornamentos superfluos; la belleza reside en la proporción, en la calidad de los acabados y en la transición inteligente entre las áreas comunes y las zonas de descanso.
Esta obra de Besana Studio se consolida como un referente local, demostrando que la modernidad no está reñida con la calidez y que una casa, antes que refugio, puede ser una pieza de arte habitable.

Besana Studio
Arquitecto
Nuestros proyectos
La voz de quienes ya habitan Besana

Casa
INN
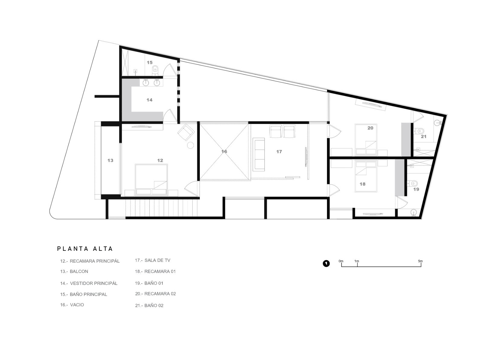
En última instancia, esta residencia es un testimonio de cómo la arquitectura puede elevar la experiencia cotidiana. El equilibrio entre la robustez de sus volúmenes y la ligereza de su jardín interior refleja una madurez creativa donde cada detalle tiene un propósito.

Casa
Malva
Casa Malva es una propuesta residencial que combina audacia formal con sofisticación material.

Casa
Alvento
Casa Alvento se erige como una residencia que redefine el concepto de vivienda compacta, logrando un equilibrio entre la pureza formal del minimalismo y una calidez envolvente.

Casa
Beta
El diseño interior se basa en el concepto de planta abierta (open concept) en el nivel inferior, esencial para la percepción de un espacio más grande y fluido.

Casa
Zibatá
Casa Zibatá se consolida como una residencia de alto diseño que cumple con los estándares de la arquitectura contemporánea de Querétaro.

Casa
Raíz
"Casa Raíz" se concibe como un santuario de serenidad y conexión con la naturaleza, donde la arquitectura se fusiona armoniosamente con el entorno.

Casa
Mazuga
Casa Mazuga se desplanta con volumetrías solidas y pesadas, que se conjugan con el sitio, muestra carácter y firmeza en su lenguaje arquitectónico.




























