
Casa
Gardens
Pachuca, Hgo.
2018 - 2020

Francisco Javier Ríos Rodríguez
Arquitecto
Denominado Casa Gardens por estar inmerso en un ambiente de vegetación y mucha tranquilidad, aunado de elementos paisajísticos como lo son lagos artificiales que se encuentran dentro del conjunto habitacional
La firma mexicana Besana Studio, dirigida por el arquitecto Francisco Javier Ríos Rodríguez ha desarrollado un proyecto esta vez, en el área metropolitana, de la capital hidalguense.
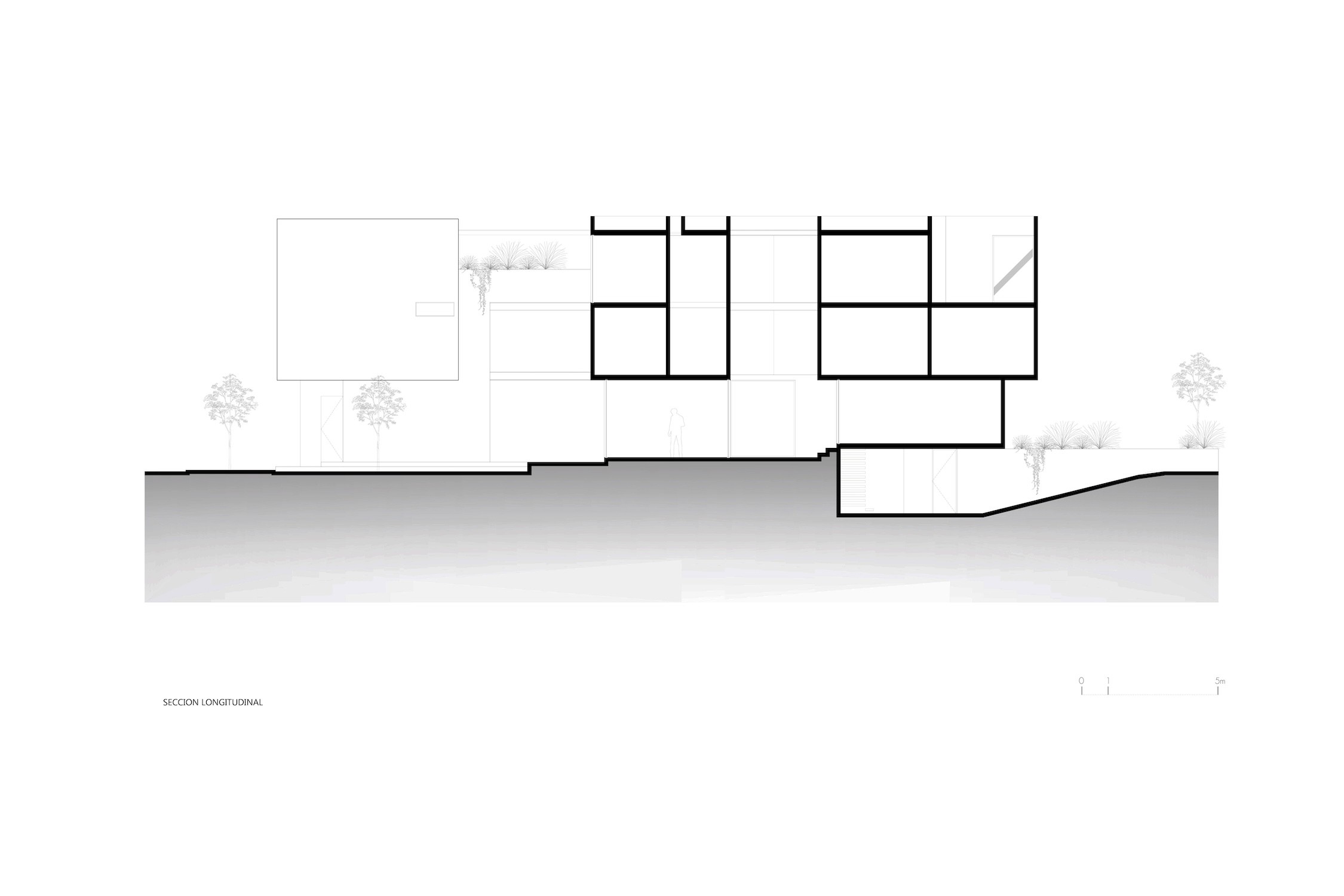
La morfología del terreno juega un papel muy importante en el diseño arquitectónico, ya que al ser irregular se convirtió en un reto distinto, y nos permitió lograr una conexión directa entre los espacios interiores y exteriores por medio de ventanales de gran tamaño que nos sirven como barreras espaciales y al mismo tiempo nos dan la oportunidad de tener una continuidad visual.
Galería de Proyecto
La escalera principal es uno de los espacios más importantes, no sólo por su calidad estética sino por ser el vestíbulo principal que deen el funcionamiento del proyecto
La iluminación natural del proyecto nos permite disfrutar de los espacios la mayor parte del día, mientras que la luz articial nos ayuda a generar diferentes ambientes llenos de armonía y calidez durante la noche, resaltando los elementos de las fachadas, muros de madera, el espejo de agua y la vegetación.
La aplicación de materiales neutros nos ayuda a generar espacios atemporales que es uno de los objetivos que tiene Besana Studio, y que en este proyecto pudimos llevar a cabo, la madera de tzalam en muros y mobiliario, vigas de acero, cristal, los muros blancos, concreto aparente y los cambios de piso en algunos espacios nos ayudan a mantener un mismo lenguaje entre las fachadas y el proyecto interior de la casa.

Francisco Javier Ríos Rodríguez
Arquitecto
Nuestros proyectos
La voz de quienes ya habitan Besana

Casa
INN
En última instancia, esta residencia es un testimonio de cómo la arquitectura puede elevar la experiencia cotidiana. El equilibrio entre la robustez de sus volúmenes y la ligereza de su jardín interior refleja una madurez creativa donde cada detalle tiene un propósito.

Casa
Malva
Casa Malva es una propuesta residencial que combina audacia formal con sofisticación material.

Casa
Alvento
Casa Alvento se erige como una residencia que redefine el concepto de vivienda compacta, logrando un equilibrio entre la pureza formal del minimalismo y una calidez envolvente.

Casa
Beta
El diseño interior se basa en el concepto de planta abierta (open concept) en el nivel inferior, esencial para la percepción de un espacio más grande y fluido.

Casa
Zibatá
Casa Zibatá se consolida como una residencia de alto diseño que cumple con los estándares de la arquitectura contemporánea de Querétaro.

Casa
Raíz
"Casa Raíz" se concibe como un santuario de serenidad y conexión con la naturaleza, donde la arquitectura se fusiona armoniosamente con el entorno.

Casa
Mazuga
Casa Mazuga se desplanta con volumetrías solidas y pesadas, que se conjugan con el sitio, muestra carácter y firmeza en su lenguaje arquitectónico.

























